• Baugrundstücke
    zu verkaufen

    slider_foto
  • Baugrundstücke
    zu verkaufen

    slider_foto

Über das Projekt

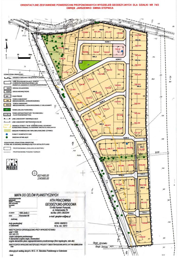
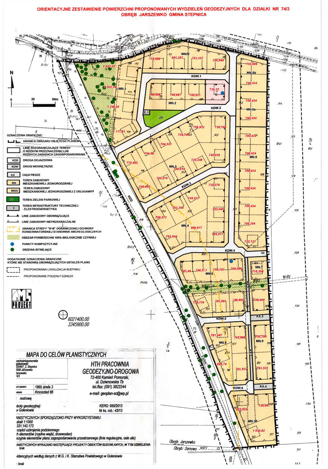
Das Investitionsgelände in der Nähe der Stadt Stepnica (Woiwodschaft Westpommern) ist ein attraktives Ensemble von 72 Grundstücken auf einer Fläche von 5,7 ha und unterliegt dem örtlichen Bebauungsplan.

Die Grundstücke befinden sich in einer ruhigen, grünen Umgebung – sie grenzen unmittelbar an einen Wald, der zum Natura-2000-Programm gehört. Ein weiterer Vorteil ist, dass das Gelände nur 1,8 km zu Fuß vom Stettiner Haff entfernt ist, was diesen Standort noch attraktiver macht.

Das angebotene Investitionsgelände stellt eine moderne Verbindung der natürlichen Umgebung mit dem bequemen Zugang zu beliebten Küstenorten und der städtischen Infrastruktur dar.

Grundstücke zu attraktiven Preisen verfügbar!

Um den Wohnkomfort zu erhöhen, ist auf einem Teil des Wohngebiets eine Freizeit- und Sportinfrastruktur sowie ein Geschäfts- und Dienstleistungsbereich vorgesehen. Das Projekt zielt darauf ab, die Lebensqualität zu verbessern, indem Räume für körperliche Betätigung, Erholung und soziale Begegnung geschaffen und zugleich ein leichter Zugang zu grundlegenden Dienstleistungen und Einzelhandel gewährleistet wird.

Bebauungsparameter

Die Wohnanlage Jarszewko Residence ist durch den Bebauungsplan (MPZP) abgedeckt, der die Grundstücke für Einfamilien- und Reihenhausbebauung vorsieht.

  • bauart: freistehende Einfamilienhäuser und Reihenhäuser
  • maximale Bebauungsfläche: 25 % für Einfamilienhäuser, 30 % für Reihenhäuser
  • ⁠minimaler Anteil biologisch aktiver Fläche: 50 % für Einfamilienhäuser
  • maximale Gebäudehöhe: 9 Meter

Lage

Die Lage bietet eine einzigartige Kombination aus Naturnähe und Zugang zur wichtigen Infrastruktur der Region. Es ist eine ruhige, grüne Umgebung, die sicherlich von Menschen geschätzt wird, die Ruhe und aktive Erholung lieben, und gleichzeitig hervorragend an beliebte Küstenorte und die wichtigsten Verkehrsknotenpunkte Westpommerns angebunden ist.

In unmittelbarer Nähe

Das Gelände befindet sich in einer malerischen, grünen Umgebung, direkt an der Waldgrenze gelegen, in einem Gebiet, das dem Natura-2000-Programm unterliegt. Nur 1,8 km Fußweg trennen es vom wilden Strand des Stettiner Haffs. In der Nähe befinden sich einige der schönsten Ostseestrände (u. a. Międzyzdroje sowie Świnoujście mit dem neuen Zufahrtstunnel)!

Verkehrsanbindung

Das Gelände liegt in der Nähe wichtiger Verkehrswege – der Straße 111, der S3 und der E65. Die S3 bietet eine bequeme Anbindung nach Süden in Richtung Stettin, Flughafen Stettin-Goleniów und der Autobahn A 6, und führt nach Norden bis Swinemünde.

Die E 65 ist eine internationale Route, die von Skandinavien bis nach Südeuropa verläuft und dabei unter anderem Polen, Deutschland, Tschechien, Österreich, Italien und Kroatien verbindet. Sie ist einer der Hauptverkehrskorridore Europas.

Standort auf Google Maps ansehen

In der Nähe

Stettiner Haff

Das Stettiner Haff ist einer der schönsten Naturräume Westpommerns und stellt einen großen Vorzug des angebotenen Investitionsgeländes dar. Von den Parzellen aus erreicht man seinen wilden Strand zu Fuß in nur 1,8 km, was diesen Standort für Naturfreunde, Wassersportler und Ruhesuchende abseits der Massen besonders attraktiv macht. Der Haff ist von zahlreichen Schutzgebieten umgeben, darunter Natura 2000, was eine unberührte Umwelt und außergewöhnliche Artenvielfalt garantiert – ideal für Wanderungen und Radtouren.

Stepnica

In der Umgebung lohnt ein Besuch in Stepnica – einer kleinen, charmanten Stadt am Ufer des Haffs, die für ihren modernen Jachthafen mit 300 Liegeplätzen, den malerischen Fischereihafen und die im Sommer veranstalteten Kultur- und Freizeit-Events bekannt ist. Die Nähe zum Stettiner Haff bietet nicht nur landschaftliche Reize, sondern auch ein vielversprechendes Investitionspotenzial in einer aufstrebenden Region, die Jahr für Jahr als Alternative zu den Ostseebädern an Popularität gewinnt.

Międzyzdroje

Międzyzdroje, nur 29 km vom angebotenen Investitionsgelände entfernt, ist einer der bekanntesten und geschätztesten Orte an der polnischen Ostseeküste. Es zeichnet sich durch sein elegantes Ambiente, wunderschöne Sandstrände und die berühmte Promenade der Sterne aus, auf der bedeutende Persönlichkeiten des polnischen Films und der Kultur ihre Handabdrücke hinterlassen haben. Sehenswert ist auch die Seebrücke, die als markanter Spazierpunkt und Anlegestelle für Ausflugsschiffe dient.
Międzyzdroje bietet eine vielfältige gastronomische, kulturelle und freizeitliche Infrastruktur mit zahlreichen Saison-Events, Festivals und Sportveranstaltungen. Die Nähe zum Investitionsobjekt macht den Ort zu einem beliebten Ziel für Ausflüge, Wochenendtrips oder das tägliche Leben am Meer, was die Attraktivität des gesamten Areals sowohl für Investoren als auch für künftige Bewohner erheblich steigert.
Fot. Wikipedia / Kapitel

Wyspa Wolin

Die Insel Wolin, etwa 25 km vom angebotenen Gelände entfernt, gehört zu den malerischsten und außergewöhnlichsten Orten in Westpommern, bekannt für ihre beeindruckenden Natur- und Kulturschätze. Hier befindet sich der Wolin-Nationalpark – der einzige Küsten-Nationalpark Polens – mit steilen Klippen, Buchenwäldern, seltenen Vogelarten und einer Bison-Freigehege.

Die Insel ist auch berühmt für Międzyzdroje – ein international renommiertes Seebad mit schöner Promenade, Seebrücke und Sternenallee, die jeden Sommer Touristen aus dem ganzen Land anzieht. Die Stadt Wolin selbst ist ein wichtiger kultureller Mittelpunkt: Das jährliche Wikingerspektakel im historischen Siedlungszentrum lockt Geschichtsinteressierte aus ganz Europa an.

Interessenten laden wir zur
Kontaktaufnahme ein

Lester Kulze (project manager)

*Pflichtfelder

Ich erkläre, dass ich der Verarbeitung der angegebenen personenbezogenen Daten zum Zweck der Bearbeitung dieser Anmeldung zustimme. Ihre personenbezogenen Daten werden gemäß Art. 13 der Verordnung (EU) 2016/679 des Europäischen Parlaments und des Rates vom 27. April 2016 verarbeitet. Verantwortlicher ist REALTOR Lester Kulze mit Sitz in Puszczykowo (62-040), ul. Klasztorna 3. Ihnen stehen das Recht auf Auskunft und Berichtigung Ihrer Daten zu. Die Angabe der Daten ist freiwillig, jedoch für die Annahme der Anmeldung erforderlich.

Ich stimme der Verarbeitung meiner personenbezogenen Daten gemäß obiger Erklärung zu